Imprimir PDF
Se vende una casa ubicada en el condominio Conguilio San Felipe

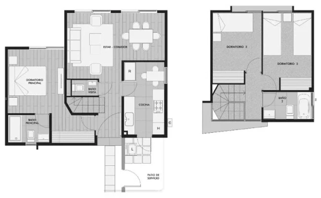
Se vende una casa ubicada en el condominio Conguilio San Felipe, sector Tocornal en la comuna de San Felipe.
Esta propiedad cuenta con;
3 dormitorios, principal en suite
2 baños,
cocina totalmente equipada
2 baños
2 estacionamientos
terraza
excelente conectividad, supermercado ,10 min del centro de san Felipe
lo que la convierte en una opción ideal para familias cuenta con un terreno de 160 m2 totales de 110 m2 construidos, mas terraza esta casa ofrece suficiente espacio para todos sus habitantes.

Además de su distribución, la orientación de esta casa es Nor-Poniente, lo que garantiza una adecuada incidencia de la luz solar durante el día. Además, cuenta con calefacción mediante aire acondicionado, lo cual brinda confort durante los meses más fríos. y calurosos .

La casa tiene un estilo de chalet, lo que le da un toque acogedor y elegante. El condominio Conguilio San Felipe ofrece un ambiente seguro y tranquilo, ideal para aquellos que buscan disfrutar de la paz y la tranquilidad en su hogar. No pierda la oportunidad de visitar esta propiedad y descubrir todo lo que tiene para ofrecer.

Amenities básicos
📐
120 m² útiles
🏗️
110 m² construidos
🛏️
3 dormitorios
🚿
2 baños
Referencia de precios
Propiedades similares en el sitio (venta)
🔵 Precio en línea con el mercado
$190.835.424 $500K $815.1M
Mediana P25–P75 Precio aviso Promedio venta
Este aviso de venta está por encima del valor más frecuente en el sitio.
Clima promedio de la comuna

☀️ Clima en San Felipe

Promedio 2021–2024
Promedio anual: 17,0 °C
Promedio anual
Abrir perfil del tiempo Cerrar perfil del tiempo
Resumen
Valores promedio
☀️
17,0 °C
Clima mediterráneo templado de valle interior, con veranos cálidos y secos e inviernos lluviosos.
Viento medio
12,0 km/h
Humedad media
60 %
Mediterráneo templado con estación seca marcada Cálido en verano, fresco en invierno Media Suave a moderado
Detalle
Temperaturas y condiciones promedio
Verano
🌤️
24,0°
Cálido en verano, fresco en invierno
Invierno
❄️
8,0°
Mediterráneo templado con estación seca marcada
Humedad
💧
60%
Media
Viento
🌬️
12,0
Suave a moderado
Distribución de días en el año
Sol 71% Nublado 22% Lluvia 15% Nieve 1%

Las comunas de valle interior en la Región de Valparaíso tienen un clima mediterráneo templado: veranos calurosos y secos, inviernos frescos con lluvias y una estación seca bien marcada. Predominan los días soleados durante buena parte del año, con noches algo más frescas.

Corredoras vv

  • Habitaciones 3
  • Baños 2
  • Superficie Total 120 m2
  • Superficie Construida 110 m2
  • Valor por m² $1.590.295 por m²
    Competitivo respecto al mercado (referencial)
  • Precio
    $ 190.835.424
  • Valor UF (1UF=39.328)
    UF 4.852
  • Activo desde 19:40:31 11/01/2026
  • ID Propiedad 3129
  • Visitas 26

San Felipe | Valparaíso

Dirección: San Felipe, sector Tocornal

Contacta con Corredoras vv

Indica tu nombre
Indica un email válido
Indica tu teléfono
Escribe un mensaje
Por favor completa el reCAPTCHA.
Busca propiedades por mapa en Chile

Busca por mapa

Ir al mapa

Propiedades similares

Problema con este anuncio.

Denunciar Aviso

Propiedades en venta y arriendo directo con dueño

Clasificados de propiedades en Chile por región y ciudad

Correo suscrito

Gracias por suscribirte a nuestro newsletter.